Casale in pietra in vendita a Loro Ciuffenna

  • €518.000,00
In vendita Collina
Casale in pietra in vendita a Loro Ciuffenna
  • €518.000,00

Dettagli

Aggiornato il Marzo 18, 2026 at 3:32 pm
  • ID Proprietà: HZR43
  • Prezzo: €518.000,00
  • Dimensioni proprietà: 220 mq
  • Dimensioni terreno: 13299 mq
  • Camere da letto: 4
  • Camere: 2
  • Bagni: 2
  • Tipologia : Casale
  • Stato: In vendita

Descrizione

Casale in pietra in vendita a Loro Ciuffenna (San Giustino Valdarno), Toscana

Panoramica

Nel verde della campagna aretina, a San Giustino Valdarno (Loro Ciuffenna), proponiamo un casale in pietra di fine ’800 su circa 1,5 ettari di terreno panoramico. La proprietà è in un contesto riservato, su strada senza uscita, e resta facilmente raggiungibile dalla Strada dei Setteponti, antico tracciato etrusco che collega Arezzo a Fiesole.

A pochi minuti dal Relais & Châteaux “Il Borro” di Ferragamo, il casale è oggi organizzato in due unità indipendenti, ideale per famiglia e ospiti oppure per una soluzione mista privato + ospitalità turistica.

Perché questa proprietà è speciale

  • Due appartamenti indipendenti (flessibilità d’uso e gestione)
  • Terreno panoramico di circa 1,5 ha
  • Contesto tranquillo: collinetta, strada senza uscita
  • Casale di fine ’800 in buone condizioni
  • Tetto rifatto nel 2025
  • Piano terra protetto da scannafosso (ambienti più salubri)
  • 40 olivi + pozzo (circa 70 m) e fonte naturale
  • Posizione strategica: Arezzo 30 min, Firenze ~1 ora

Spazi interni

La proprietà è attualmente suddivisa in due appartamenti per una superficie abitativa complessiva di circa 220 mq.

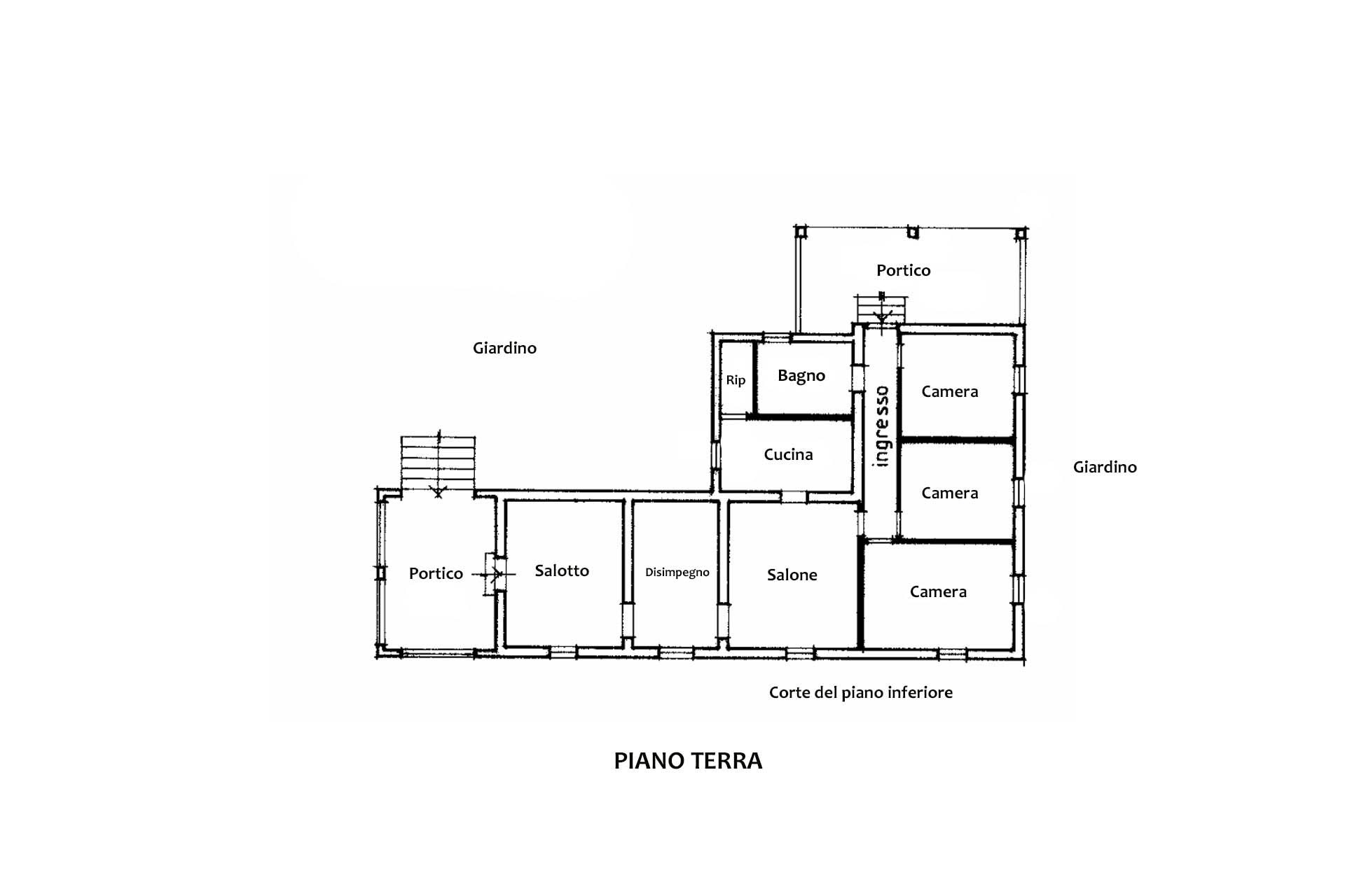
Appartamento piano terra (circa 90 mq)

Accesso dalla corte della proprietà. Distribuzione interna: Ingresso, sala, cucina, bagno, ripostiglio, una camera matrimoniale ed un’ulteriore sala che potrebbe essere adibita a camera o sala.

Appartamento piano primo (circa 130 mq)

Accesso dal giardino della parte superiore. Presenti due grandi portici: uno perfetto per pranzi e cene all’aperto, l’altro valorizzato da una vista aperta. Distribuzione: ingresso, corridoio, tre camere, cucina, bagno, ripostiglio, disimpegno, sala con camino, sala TV e salotto.

Locali accessori

Al piano terra troviamo una cantina di circa 30 mq con soffitto a voltine in mattoni (elemento ricorrente nel casale) e un locale con caldaia a pellet.

Esterni & Terreno

Il terreno di circa 1,5 ettari ospita circa 40 piante di olivo con produzione indicativa di 30–50 litri/anno. Sono presenti un pozzo profondo circa 70 metri e una fonte d’acqua naturale.

Spazi e pendenze permettono una fruizione piacevole, con diverse aree da vivere all’aperto. Possibilità di realizzare una piscina, previa verifiche urbanistiche e autorizzative.

Ospitalità & Investimento

La presenza di due unità indipendenti rende il casale adatto a un utilizzo “ibrido”: residenza principale + locazioni turistiche per una parte della proprietà.

Location

San Giustino Valdarno (Loro Ciuffenna) offre quiete e panorama, con collegamenti comodi grazie alla Strada dei Setteponti. In sintesi, una base ideale per muoversi tra borghi e città d’arte.

  • Arezzo: circa 30 minuti
  • Firenze: circa 1 ora
  • Siena: 50 minuti
  • Chianti: 45 minuti
  • Distanza aeroporto Firenze circa 1 ora

Indirizzo

  • Città Arezzo
  • Zona Loro Ciuffenna

Planimetrie dei piani

image

Descrizione:

image

Descrizione:

Confronta Strutture

Confronta
Antonio Russo
  • Antonio Russo
WhatsApp