Farmhouse with pool for sale in Castel del Piano

  • €590.000,00
For Sale Hill
Farmhouse with pool for sale in Castel del Piano
  • €590.000,00

Details

Updated on January 28, 2026 at 7:22 pm
  • Property ID: HZR41
  • Price: €590,000.00
  • Property size: 270 square meters
  • Land size: 17,000 square meters
  • Bedrooms: 5
  • Bathrooms: 5
  • Status: For sale

Description

Stone farmhouse with pool for sale in Castel del Piano

Overview

Just 3 km north of Castel del Piano, nestled in a landscape of centuries-old olive trees, this authentic Tuscan stone farmhouse offers unobstructed views of the hilltop village of Montegiovi. The property includes approximately 2 hectares of land and a rare sense of privacy, ideal for those seeking tranquility, nature, and outdoor living spaces.

The house is spread over three levels and offers flexible spaces, suitable for both a country residence and holiday rental. The private swimming pool completes the picture: a genuine Tuscan retreat, with local amenities and infrastructure just a short distance away.

Indoor spaces

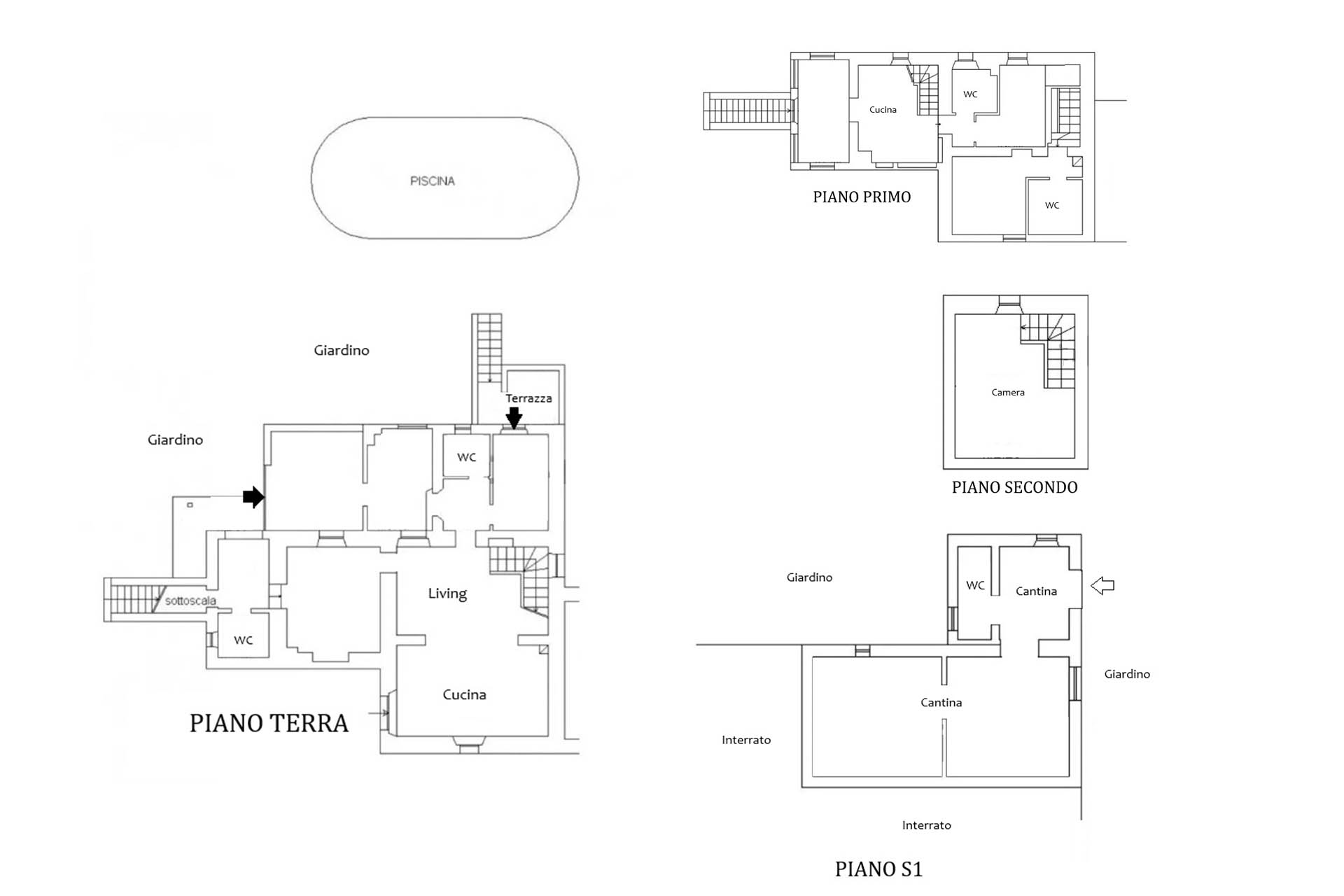
The main entrance is on the ground floor, through a bright veranda. Here we find the living area with open-plan kitchen, three rooms that can be used as bedrooms or studies, and two bathrooms. A stone staircase leads to a bedroom on the upper floor with private bathroom, perfect as a suite.

An external staircase also connects the upper levels, where there is a second open-plan living/dining area with a fully equipped kitchen, a bedroom, and a bathroom with shower. On the upper level, there is a double bedroom. The property is completed by a practical cellar, currently used as a storage space for the oil produced on the estate.

Exterior, pool, and grounds

The heart of the outdoor area is the private swimming pool, located in front of the house: a natural meeting place for summer days. A shaded lounge area combines comfort and protection,ideal for relaxation and socializing. The approximately 2-hectare plot, with high-quality olive trees, enhances the "Tuscan countryside" experience and allows for light agricultural management.

Facilities and amenities

According to the seller, the property is designed for energy independence: heating is provided by high-quality wood-burning stoves, and the availability of wood on the property is a practical advantage. There is also a 5.9 kW solar system for producing hot water throughout the year.

Location and services

Castel del Piano offers excellent logistics for enjoying the property in every season: hospital, school, medical services, supermarkets, bars, and restaurants. The location allows you to enjoy the tranquility of the countryside without sacrificing the convenience of the town, making the farmhouse suitable for both long stays and tourist use.

The availability of additional adjacent agricultural land with olive trees is also indicated; some plots would have building rights. Further information and conditions available on request, subject to appropriate urban planning checks.

Why this property is special

  • Authentic stone farmhouse with views of Montegiovi
  • Private pool in front of the house + shaded annex
  • Approximately 2 hectares with centuries-old olive trees of excellent quality
  • Multi-level distribution: flexible guest spaces
  • Bright veranda and convivial open-plan spaces
  • Functional cellar (now used for storing oil)
  • Wood heating + solar system (data available on request)
  • Services in Castel del Piano a short distance away (3 km)

Address

  • City Castel del Piano
  • Area Castel del Piano

Floor plans

image

Description:

Compare Facilities

Compare
Antonio Russo
  • Antonio Russo
WhatsApp